ノヴァ目黒南A
- お気に入り
- mail_outline 物件へのお問い合わせ
タイル貼りの明るい低層マンション
中古マンション
- 価格
- 9,580 万円(税込) pollローンシミュレーション
- 所在地
- 東京都目黒区南1丁目
- 交通
-
東急目黒線「西小山」 駅徒歩12分
東急目黒線「洗足」 駅徒歩13分
タイル貼りの明るい低層マンション
- 担当
-
森田正美
- 営業時間
- 10:00~18:00
- 定休日
- 毎週火・水曜定休
外観
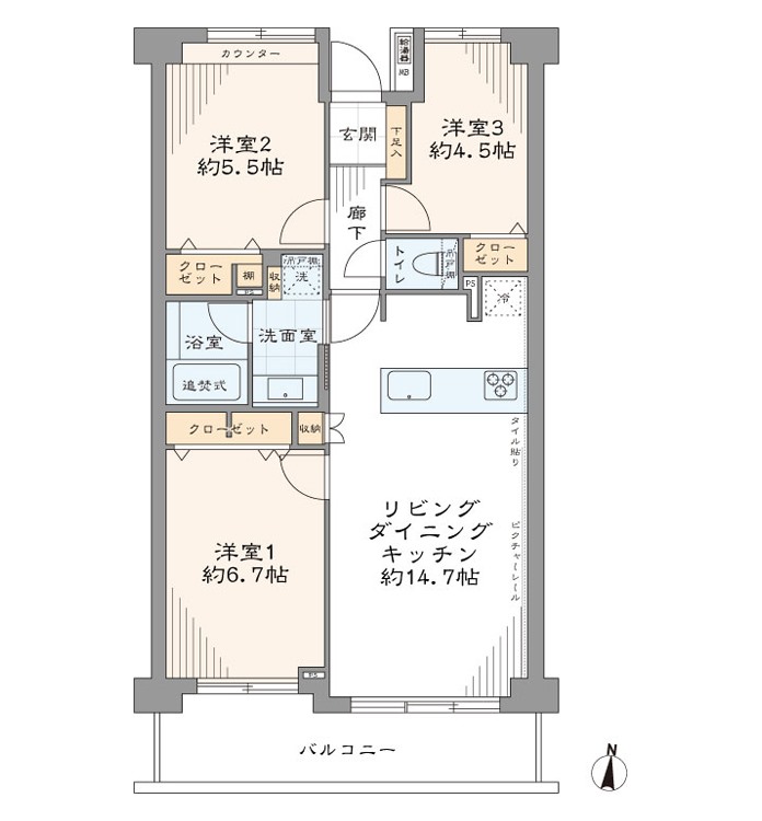
間取
目黒区の中古マンションノヴァ目黒南Aをご覧いただきありがとうございます。 QUALITY-CONCEPT(クオリティコンセプト)四谷店不動産売買仲介情報サイトでは、 ノヴァ目黒南Aの中古マンション以外にも、 目黒区のマンション、新築戸建、中古戸建、土地など不動産情報を多数ご紹介しております。 千代田区・中央区・港区・新宿区・渋谷区・文京区で不動産の購入・売却・資産運用・投資をお考えの方はQUALITY-CONCEPT(クオリティコンセプト)四谷店にお任せください!