イニシア築地
- お気に入り
- mail_outline 物件へのお問い合わせ
日比谷線「築地」駅徒歩1分
中古マンション
- 価格
- 22,900 万円(税込) pollローンシミュレーション
- 所在地
- 東京都中央区築地2丁目
- 交通
-
東京地下鉄日比谷線「築地」 駅徒歩1分
東京地下鉄有楽町線「新富町」 駅徒歩3分
東京都浅草線「東銀座」 駅徒歩7分
日比谷線「築地」駅徒歩1分
- 担当
-
森田正美
- 営業時間
- 10:00~18:00
- 定休日
- 毎週火・水曜定休
外観
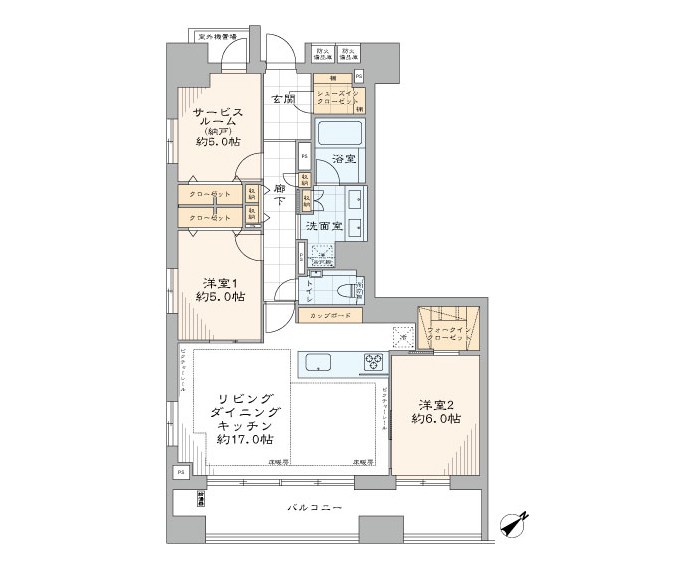
間取
中央区の中古マンションイニシア築地をご覧いただきありがとうございます。 QUALITY-CONCEPT(クオリティコンセプト)四谷店不動産売買仲介情報サイトでは、 イニシア築地の中古マンション以外にも、 中央区のマンション、新築戸建、中古戸建、土地など不動産情報を多数ご紹介しております。 千代田区・中央区・港区・新宿区・渋谷区・文京区で不動産の購入・売却・資産運用・投資をお考えの方はQUALITY-CONCEPT(クオリティコンセプト)四谷店にお任せください!