富久クロスコンフォートタワー
- お気に入り
- mail_outline 物件へのお問い合わせ
新宿御苑を見晴らすパノラマビュー
中古マンション
- 価格
- 32,190 万円(税込) pollローンシミュレーション
- 所在地
- 東京都新宿区富久町
- 交通
-
東京地下鉄丸ノ内線「新宿御苑前」 駅徒歩7分
東京地下鉄副都心線「新宿三丁目」 駅徒歩9分
新宿御苑を見晴らすパノラマビュー
- 担当
-
森田正美
- 営業時間
- 10:00~18:00
- 定休日
- 毎週火・水曜定休
外観
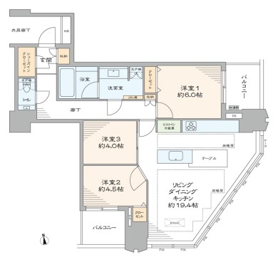
間取
新宿区の中古マンション富久クロスコンフォートタワーをご覧いただきありがとうございます。 QUALITY-CONCEPT(クオリティコンセプト)四谷店不動産売買仲介情報サイトでは、 富久クロスコンフォートタワーの中古マンション以外にも、 新宿区のマンション、新築戸建、中古戸建、土地など不動産情報を多数ご紹介しております。 千代田区・中央区・港区・新宿区・渋谷区・文京区で不動産の購入・売却・資産運用・投資をお考えの方はQUALITY-CONCEPT(クオリティコンセプト)四谷店にお任せください!