ガレリアコルテ六番町
- お気に入り
- mail_outline 物件へのお問い合わせ
5路線3駅利用可能
中古マンション
- 価格
- 26,980 万円(税込) pollローンシミュレーション
- 所在地
- 東京都千代田区六番町
- 交通
-
中央本線「四ツ谷」 駅徒歩4分
総武・中央緩行線「四ツ谷」 駅徒歩4分
東京地下鉄丸ノ内線「四ツ谷」 駅徒歩4分
5路線3駅利用可能
- 営業時間
- 10:00~18:00
- 定休日
- 毎週火・水曜定休
外観
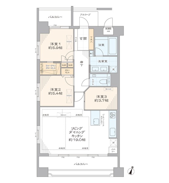
間取
千代田区の中古マンションガレリアコルテ六番町をご覧いただきありがとうございます。 QUALITY-CONCEPT(クオリティコンセプト)四谷店不動産売買仲介情報サイトでは、 ガレリアコルテ六番町の中古マンション以外にも、 千代田区のマンション、新築戸建、中古戸建、土地など不動産情報を多数ご紹介しております。 千代田区・中央区・港区・新宿区・渋谷区・文京区で不動産の購入・売却・資産運用・投資をお考えの方はQUALITY-CONCEPT(クオリティコンセプト)四谷店にお任せください!