パークコート一番町
- お気に入り
- mail_outline 物件へのお問い合わせ
半蔵門線「半蔵門」駅徒歩3分
中古マンション
- 価格
- 47,990 万円(税込) pollローンシミュレーション
- 所在地
- 東京都千代田区一番町
- 交通
-
東京地下鉄半蔵門線「半蔵門」 駅徒歩3分
東京地下鉄有楽町線「麹町」 駅徒歩5分
半蔵門線「半蔵門」駅徒歩3分
- 担当
-
森田正美
- 営業時間
- 10:00~18:00
- 定休日
- 毎週火・水曜定休
外観
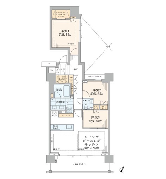
間取
千代田区の中古マンションパークコート一番町をご覧いただきありがとうございます。 QUALITY-CONCEPT(クオリティコンセプト)四谷店不動産売買仲介情報サイトでは、 パークコート一番町の中古マンション以外にも、 千代田区のマンション、新築戸建、中古戸建、土地など不動産情報を多数ご紹介しております。 千代田区・中央区・港区・新宿区・渋谷区・文京区で不動産の購入・売却・資産運用・投資をお考えの方はQUALITY-CONCEPT(クオリティコンセプト)四谷店にお任せください!