芝浦アイランドケープタワー
- お気に入り
- mail_outline 物件へのお問い合わせ
トイレ2箇所新規設置
中古マンション
- 価格
- 27,990 万円(税込) pollローンシミュレーション
- 所在地
- 東京都港区芝浦4丁目
- 交通
-
山手線「田町」 駅徒歩12分
京浜東北・根岸線「田町」 駅徒歩12分
東京都三田線「三田」 駅徒歩15分
トイレ2箇所新規設置
- 営業時間
- 10:00~18:00
- 定休日
- 毎週火・水曜定休
外観
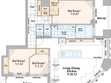
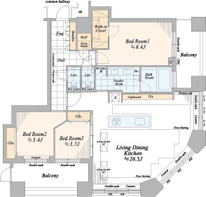
間取
港区の中古マンション芝浦アイランドケープタワーをご覧いただきありがとうございます。 QUALITY-CONCEPT(クオリティコンセプト)四谷店不動産売買仲介情報サイトでは、 芝浦アイランドケープタワーの中古マンション以外にも、 港区のマンション、新築戸建、中古戸建、土地など不動産情報を多数ご紹介しております。 千代田区・中央区・港区・新宿区・渋谷区・文京区で不動産の購入・売却・資産運用・投資をお考えの方はQUALITY-CONCEPT(クオリティコンセプト)四谷店にお任せください!